반응형
1. 가설계(기본설계)

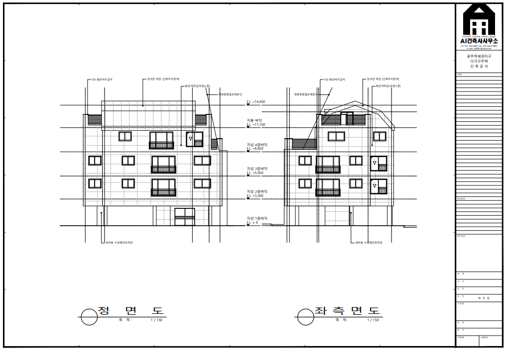
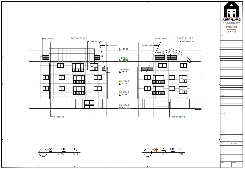
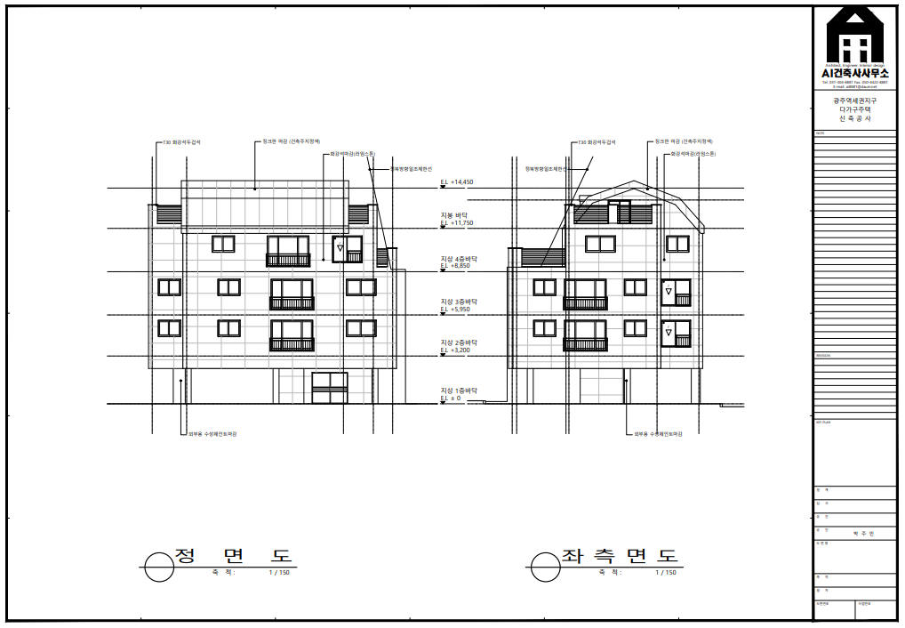
기본설계란 대지위에 건축법규에 맞게 주차장배치 및 각층의 방위치, 거실위치, 화장실위치, 주방위치등을 배치하는 레이아웃 도면을 말한다. 위의 도면에서 보듯이 크게 골격을 잡고 세부적인 창의 배치, 가구배치, 마감자재의 선정등은 최종적인 실시설계를 통하여 진행한다,
2. 설계사무소 계약
토지를 매입하고, 사업성 판단을 실시한후 사업성이 있다고 판단하면 설계사무소와 계약을 진행한다.
가급적이면 매가 매입하고 사업하고자 하는 지역의 시청이나 구청의 지역 인근 설계사무소와 업무 진행을 하는것이 향후 전반적인 공사진행이 유리하리라 본다

3. 실시설계
실시설계란 기본설계도면을 통해 기본적인 건물 배치도, 각층의 평면도, 주차장 대수 산정등이 확정되면
각층의 세부적인 가구배치, 창호배치, 건축의 각종 마감자재 선정, 그리고 타공정이 토목, 기계,전기, 통신, 소방등의
설계를 마무리하여 공사예산을 견적할수 있는 도면을 완성하는것을 말한다.



4. 감리 용역 계약

공사를 진행하기 위해서는 공사진행을 감리할 감리용역사와 계약이 진행되어야 공사진행 허가를 득할수 있다.
반응형
'꼬마빌딩 신축시공사례' 카테고리의 다른 글
| 꼬마빌딩 건축시 필요한 건축법규 (1) | 2025.10.09 |
|---|---|
| 꼬마빌딩 신축공정 4. 건축허가 (0) | 2025.10.09 |
| 꼬마빌딩 신축 공정 2 - 토지매입 (0) | 2025.10.09 |
| 꼬마빌딩 신축 공정 1- 건축설계개요,자금수지 분석 (0) | 2025.10.08 |
| 꼬마빌딩 시공사례-철근 콘크리트 공사- 1층 (0) | 2025.10.08 |